Social and office buildings
Case Study
Project Details:
Modular social and office building project
Modular social and office building project
The building was designed as modular container structure intended for social and office purposes to support ongoing activities.
The project was carried out at two locations – Gdańsk and Strykowo near to Poznań, where an additional photovoltaic system was installed on the roof to support the generation of electricity from renewable sources. The work included the delivery of ready modular containers along with interior installations and equipment.
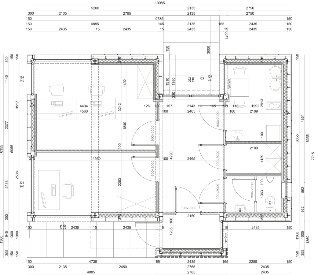
Functional layout
Photovoltaic system installation
Photovoltaic system installation
To improve the energy efficiency of the facility, a photovoltaic system was installed on the roof of the modular building. The installation consists of 77 solar panels with a total capacity of 40 kW, enabling the production of electricity from renewable energy sources directly on site.
The generated energy powers the office and social areas of the building and also supports an electric vehicle charging station. This solution increases the building’s energy independence and reduces reliance on external power sources.
Architectural form
Architectural form
The building form was created by combining four rectangular container modules placed next to each other. The use of an offset middle module allowed for a more varied facade composition while maintaining a compact structural layout.
The building’s exterior combines different finishing materials mounted on a steel substructure fixed to the container frame, including metal panels and vertical facade elements.
Container system
Container system
The building was constructed from four container modules
made using a steel construction system. The container structure consists of a self-supporting steel frame made from cold-rolled profiles.
The floor and roof frames are connected by corner columns bolted
to both load-bearing frames.
Steel 4 mm (S 275) or 5 mm (S 355)
Modular office-social building installation
Modular office-social building installation
As part of the project, we carried out the complete installation of a system-based building consisting of four “20” containers. The process included mounting the steel structure, foundations made of B20 concrete, and exterior walls with polyurethane core sandwich panels for excellent insulation.
During the installation, the containers were carefully lifted and positioned on the foundations with high precision. After the installation, the building was connected to essential utilities, including rainwater drainage, fire water tanks, and a sanitary sewage system. Thanks to meticulous execution, the building was ready for use in a short time, meeting all functional and technical requirements.